






























| 区画 | 価格 | 面積 | お気に入り |
|---|---|---|---|
| 山梨県甲府市下今井町B(全5区画) | 854万円 | 261.67㎡(72.15坪) | 9人 |

| 物件名 | 山梨県甲府市下今井町B(2号棟)新築建売住宅(建売住宅) |
|---|---|
| 価格 | 3,680万円 |
| 所在地 | 山梨県甲府市下今井町字村東724-4 |
| 学区 | 山城小学校・城南中学校 |
| 建ぺい率・容積率 | 60%・200% |
| 土地面積 | 261.79㎡(79.19坪) |
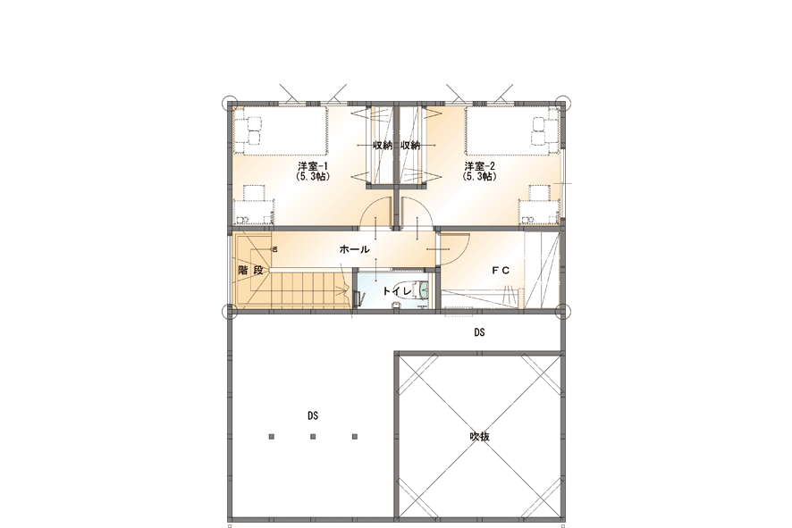
| 建物面積 | 96.05㎡(29.04坪) |
| 販売区画数 | 1 |
| 最寄駅 | JR身延線『甲斐住吉』駅 |
| 交通 | バス停「落合」へ徒歩7分 |
| 地目 | 宅地 |
| 都市計画 | 市街化調整区域 |
| 地勢 | 平坦 |
| 接道 | 東側既存道路(建築基準法第42 条1項1号)幅員5.41m~ 5.48m、接道幅10.223m |
| 取引態様 | 売主 |
| 用途地域 | 無指定 |
| 土地権利 | 所有権 |
| 環境 | 住宅地 |
| 設備 | 東京電力、エコキュート、上水 道、下水道 |
| 新築年月日 | 2026年5月完成予定 |
| 建築確認番号 | 第250571号 |
| 備考 | ・種別:奏いえ ・GX志向型住宅 ・長期優良住宅 ・太陽光発電『ソーラーフロンティア』8.3kw搭載 ・LDK家具付き ・外構付き |