




























| 物件名 | 山梨県甲斐市篠原G(12号棟)新築建売住宅(建売住宅) |
|---|---|
| 価格 | 3,570万円 |
| 所在地 | 甲斐市篠原字柳河原648-18 |
| 学区 | 竜王小学校・竜王中学校 |
| 建ぺい率・容積率 | 50%・80% |
| 土地面積 | 222.01㎡(67.15坪) |
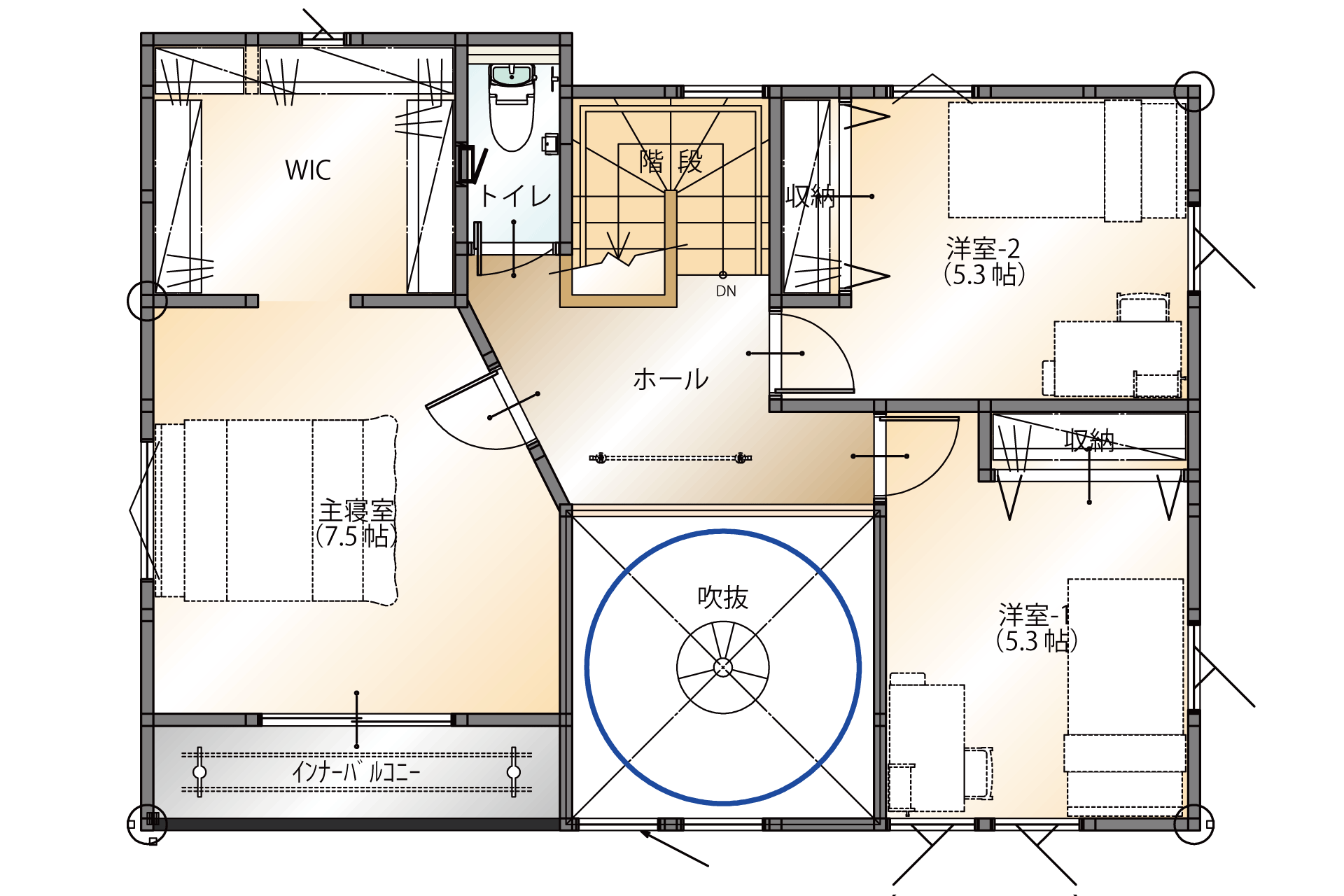
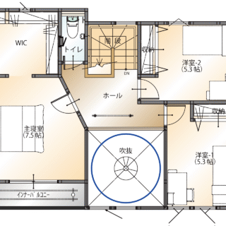
| 建物面積 | 105.16㎡(31.80坪) |
| 販売区画数 | 1 |
| 最寄駅 | JR中央線『竜王』駅 |
| 交通 | バス停「榎局」へ徒歩8分 |
| 地目 | 田 |
| 都市計画 | 区域内 |
| 地勢 | 平坦 |
| 法令上の制限 | 景観法 |
| 接道 | ・北側新設道路(建築基準法第42条第1項2号)幅員6.000m、接道幅16.200m |
| 取引態様 | 売主 |
| 用途地域 | 第2種低層住居専用地域 |
| 土地権利 | 所有権 |
| 環境 | 住宅 |
| 設備 | 東京電力、エコキュート、上水道、下水道 |
| 新築年月日 | 2026年6月完成予定 |
| 建築確認番号 | 第250814号 |
| 備考 | ・種別:Lino ・太陽光発電『Qセルズ(鈴与0円プラン)』11.000kw搭載 ・長期優良住宅 ・耐震等級3 ・GX志向型住宅 ・外構付き |