MENU
0120-232-042
〒400-0856 山梨県甲府市伊勢4丁目22-1 サンマリーナビル伊勢
分譲地・売地
注文住宅
建売住宅
拠点・住宅展示場
リフォーム
不動産買取
自分のお気に入り物件
採用情報
プライバシーポリシー
サイトマップ
見学予約
物件のお問合せ
LINE公式アカウント
お電話
>
分譲地 / 新築住宅
>
物件情報
>
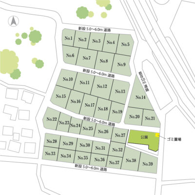
南アルプス市寺部B_区画図ol
掲載日:
2023.1.30
南アルプス市寺部B_区画図ol
新着
No article exists.
月別
月を選択
年別
年を選択
0120-232-042
〒400-0856
山梨県甲府市伊勢4丁目22-1
サンマリーナビル伊勢
TEL 055-223-2211(代)
FAX 055-223-5123